STERLING HEIGHTS — When you’ve got to go, you’ve got to, well, you know.
That basic need is behind a nearly $470,000 investment for a custom ready-to-assemble restroom facility at Red Run Park approved by the Sterling Heights City Council Feb. 17.
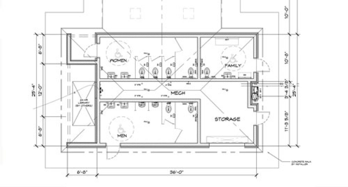
According to background material from the city, plans call for a 1,020-square-foot restroom and storage area facility with an attached 720-square-foot pavilion. The addition is part of the Pathway to Play and Preservation Millage voters passed in November 2024.
“The Parks and Recreation Department has been diligently working on the various quality-of-life improvements promised to Sterling Heights residents,” a meeting agenda document states. “This includes the complete renovation and redesign of Red Run Park, which will serve as a flagship park in the city’s southeast” region. It is located south of 15 Mile Road and west of Schoenherr Road.
Other amenities slated for the 14.9-acre parcel include a dog park, pickleball courts, a bike/hike trail and 24-hour satellite public library. Long-term plans also envision Red Run Park connecting with Baumgartner Park through a pedestrian bridge spanning the Red Run.
Romtec Inc., which has decades of experience designing park structures and pavilions for federal, state and local agencies throughout the United States, will receive $469,767 for its work planning and delivering the restroom facility. Through a cooperative purchasing program, the city received a 5% discount on the project, a savings of $23,622.
According to agenda documents, Romtec will provide all materials required to construct the pavilion, everything from concrete blocks to soap dispensers. Installation will be handled by a separate contractor.
“Although we have not purchased a building from Romtec in our department’s history, this building was highly recommended by our prime consultant, Spalding DeDecker and integrated into our site conceptual design,” Kyle Langlois, Sterling Heights’ parks and recreation director, wrote in a memo to the city’s purchasing manager. “Through my research and attendance at national conferences over the years, I can say that Romtec is undoubtedly a well-known supplier of structures of this kind in the profession and have been actively providing services in all (50) states since 1979.”
In an interview after the council meeting, Langlois told the Sentry that purchasing a prefabricated building is an effective way of ensuring the city gets exactly what it wants.
“It’s an efficient way to go about it,” he said. “You’re getting a quality-controlled building delivered the way you want it. So even though it’s premanufactured, it still needs to meet all of our specifications. … It’s not just cookie cutter like you get choice A or choice B.”
In addition to restrooms, the new structure will include storage space and a special 24-hour library kiosk.
“That goes back to having to design the building for what we needed,” Langlois said. “We had to make sure that there was an overhang that would cover the 24-hour library. So that will be on the outside of the building. It will be completely covered from the elements. It will have the power that’s needed for the library to function. We’ll have our data cables the 24-hour library requires and internet access. … That building is essentially the hub of all the electrical and internet needs in the park.”
Red Run Park is scheduled to open in late fall of 2026.
Other business
In other business at the Feb. 17 meeting, the City Council approved the resurfacing of the Clinton River Trail between Riverland Drive and Van Dyke Avenue at a total cost of $296,593. The work covers approximately 3,556 feet of trailway and includes pulverizing the existing path, widening as much as possible, and repaving with restoration. Work is expected to be completed by the end of June.
Council members also approved a mental health case manager position for the city’s Crisis Assistance Response and Engagement team, which is scheduled to launch in April. The move amends an agreement with the organization Face Addiction Now and increases the number of FAN case managers for Sterling Heights from two to three. The additional position is 100% funded by a grant from the U.S. Department of Justice.
According to a memo from Sterling Heights Police Capt. Scott Lucas, the CARE team will include two police officers specially trained in crisis response and intervention, paired with a FAN case manager.
“This team will directly respond to 911 calls involving persons in crisis and will provide on-site assessment, crisis intervention, and immediate resource connection,” the memo included with meeting background material states. “In addition, the case manager will conduct follow-up services to ensure continued care and access to appropriate treatment and community resources. The addition of a third case manager will significantly enhance the City’s ability to provide timely, effective, and coordinated responses to individuals experiencing mental health crises.”
The City Council also approved a Parks and Recreation Department request to purchase a mix of rectangle and circle tables of various sizes for the city’s new pickleball facility, which is scheduled to open this summer. The cost is $20,071, including freight.
The tables will be supplied by Arkansas-based Southern Aluminum which, according to background material, “produces a lightweight aluminum table that has proven to be not only durable, but attractive to the eye and light enough for staff to move around accordingly.”
Publication select ▼











